The purpose of this studio project at the University of Minnesota was to design a space that accommodated a couple’s needs and style preferences while allowing them to live more cost-efficiently in true tiny-home tradition. Prior to designing the space, a Precedent Analysis, Space-Needs Analysis, and Site & Contextual Analysis were performed to inform the design process. 
In designing the clients’ mini refuge, I aimed to give them “Less House, More Home” - working within certain constraints to create a space where they could find rejuvenation, relaxation, and reflection. The space was intended to serve their physical needs efficiently and their mental needs expansively. In doing so, their new home becomes a landing place for them - somewhere they can always return to in order to refresh, reset, and renew their minds and bodies.
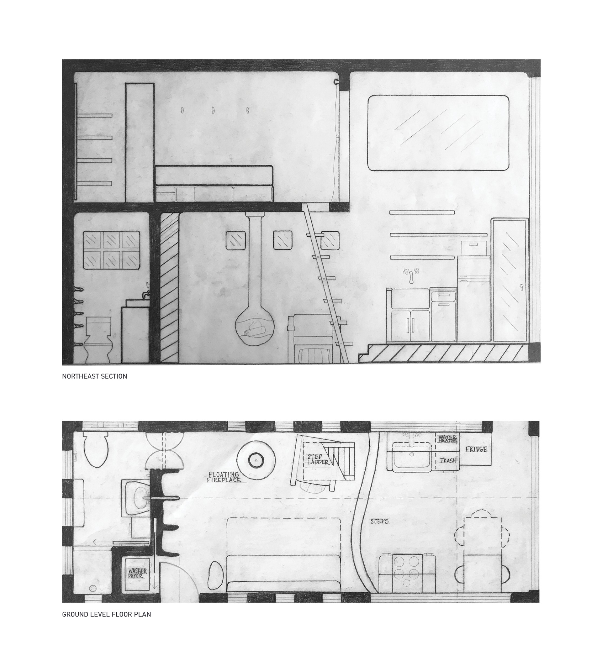
Finishes throughout emphasize whites and neutrals with pops of terracotta, mossy green, dusty rose, slate gray, and deep mauve. The clients find comfort in outdoor integration, so skylights and expansive glazing are utilized. Sharp corners are minimized in favor of coved ceilings and continuous finish, evoking the smooth contours of traditional adobe housing. The adobe structures also serve as inspiration for a stacked concept in which levels are connected via stepladder.
Back to Top